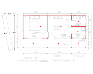
Plano y especificaciones
VIVIENDAS ROCA , Modelo 23,40 1 D con Galería
Altura interior: 2,6
Ventanas: línea Roca alumino blanco con vidrio 1,79×1,50, 1,2×0,5, 0,6×0,3
Puerta frente: chapa plegada inyectada.
Puerta placa: tipo tablero marco chapa plegada.
Aislación térmica: lana de vidrio en paredes y cielorraso 38 mm
Aislación hidrófuga: wichi en paredes y techo.
Cielorraso: machimbre 1/2”
Revestimiento exterior cabreadas: placa cementicia 6 mm
Revestimiento exterior cabreadas: placa cementicia.
Placa interior paneles dormitorio y comedor: aglomerado 8 mm
Placa interior paneles de cocina: cementicia 6mm
Placa interior paneles baño: cementicia 6 mm.
Unión de paneles: 4 “
Anclajes: 1 anclaje en cada unión de panel y columnas, fijados a platea con tornillos.
Techo: 2 aguas a la vista.
Cenefas: pino con molduras1”x5” y 1”x7”
Cañerias de agua y gas en termofusión, sólo cañería embutida en panel sin desague.
Cañerías de electricidad: sólo tendido de cañería corrugado metálico y cajas plásticas sin cableado.
Artefactos y griferáis: únicamente grifería ducha sin cargo (se entrega sin instalar).


